ユニテハウス

クリエイト礼文の注文・分譲住宅情報

×
#13 New Garden

#13 New Garden

仙台市名取市 モデルハウス

周辺環境

Environment/
名取市は仙台市の南東に隣接しており、市内には仙台空港がある。空港への交通として東北本線と仙台東部道路が市内中央を縦断しており、仙台の市街地までのアクセスも良い。仙台市との境界には名取川が流れ、太平洋へとつながっている。

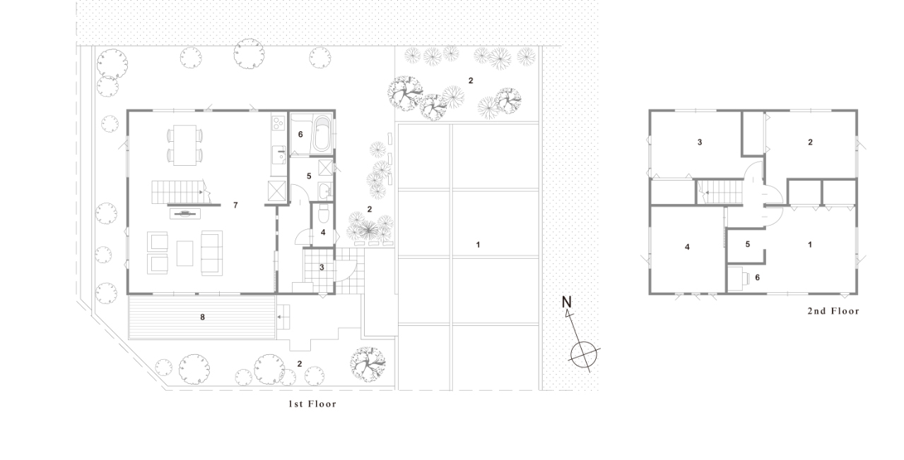
配置図 間取り図

Site/
南西の2方道路の角地。間口14m、奥行き16mで道路の隅切りのため、5角形の敷地。東側の幅5m部分は50cmほど下がっており車の乗り入れが可能。それ以外の部分は道路との段差がある。
Data/
【坪数】
Site area / 245.76㎡(74.34坪)
Building area / 59.62㎡(18.04坪)
1st floor area / 59.62㎡(18.04坪)
2nd floor area / 59.62㎡(18.04坪)
Architectural area / 119.24㎡(36.07坪)
【間取り】
1st Floor / 1.Parking space 2.Garden 3.Entrance 4.Toilet 5.Sanitary room6.Bath room 7.L.D.K(12.5帖) 8.Wood deck
2nd Floor / 1.Bed room(7.7帖) 2.Room-1(6.6帖) 3.Room-2(6.5帖) 4.Free space(6.7帖) 5.Walk in closet 6.DEN

ガーデン

道路とデッキを隔てる植栽は、自然の要素と同時に目隠しの役割を果たす。

外観

駐車スペースのゆるやかな傾斜が自然なアプローチとなっている。

リビングルーム

ダイニングキッチンとリビングの中央にストリップ階段を設置することで、それぞれの空間を分離しメリハリをつけた。

サンルーム

洗濯物を干す、アイロンをかける、を同じ空間で行えるようにスペースを確保

ユニテ スタッフ

ユニテ スタッフの
コメント

プライバシーを守りながら自然も感じるウッドデッキ

道路との間を緩やかに仕切った新たなアイテム。風や光の量を調整できる
アルミ製のバーゴラとルーバーで、どんな季節でも心地よく過ごせる空間に仕上げた。


土地形状を活かした新しい庭のカタチ
玄関がある東面には段差を活かしてつくったレンガがアクセントのアプローチ。風呂場の窓から見える緑の風景、駐車場の奥にはガーデンスペース、まるでアメリカにあるオープンガーデンのような雰囲気を持ちながら、塀で囲う日本のクローズドガーデンのようなスタイルを併せ持つ。

閉塞感を感じさせない空間構成
ダイニングキッチンとリビングの中央にストリップ階段を設置することで、それぞれの空間を分離しメリハリをつけた。