ユニテハウス

クリエイト礼文の注文・分譲住宅情報

×
#10 Snow Country House

#10 Snow Country House

山形県山形市 モデルハウス

地域要因

幅員7mの西側道路に接し、間口9.5m、奥行き22mの整形地。
豪雪地帯ということもあり雪を寄せるスペースを考慮する必要がある。駐車スペースを3台、ウッドデッキを作りアウトドアリビングも用意した。

住居の周りには憩いのスぺースを

住居の周りには、花壇や寄せ植えスペース、ミニデッキなどで日々の生活の中で憩いとなるスペースを設け、家の外や窓から景色にワンポイントプラスした。

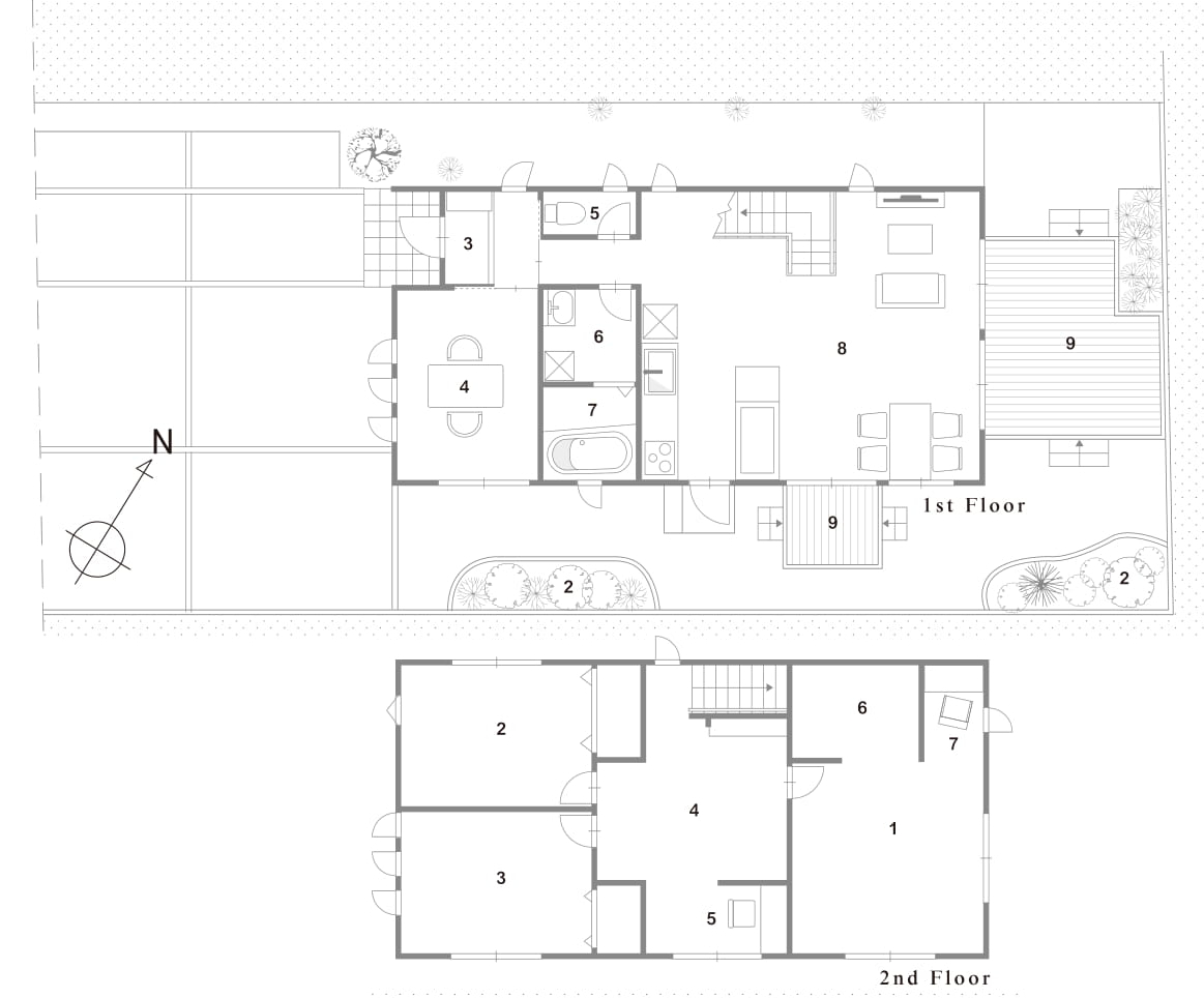
配置図 間取り図

Site/

Data/
【坪数】
Site area / 209.02㎡(63.23坪)
Building area / 59.62㎡(18.04坪)
1st floor area / 57.96㎡(17.53坪)
2nd floor area / 59.62㎡(18.04坪)
Architectural area / 117.58㎡(35.57坪)
【間取り】
1st Floor / 1.Parking space 2.Garden 3.Entrance 4.Room1(6.0帖) 5.Toilet 6.Sanitary Room 7.Bath room 8.L.D.K(21.0帖) 9.Wood deck
2nd Floor / 1.Bed room(13.9帖) 2.Room-2(10.7帖) 3.Room-3(10.7帖) 4.Free space(5.6帖) 5.Sun room 6.Walk in closet 6.DEN

家族の時間も一人の時間も大切に

1階はリビング階段を採用、常に家族とコンタクトとれるつくりとし、2階は家族が一人ひとりのプライベート空間であるDENをつくった。

管理 アカウント

管理 アカウントの
コメント

豪雪地帯において、雪対策を充実させた物件。住宅の正面にある駐車場の全長を2m長くし、堆雪スペースを設けた。採用した陸屋根は後ろ側に向かって若干傾斜をさせ、雨どいの中にもヒーターを通して屋根からせり出した予期を溶かし、氷柱を防ぐ工夫も。