ユニテハウス

クリエイト礼文の注文・分譲住宅情報

×
#20 picture window

NEW #20 picture window

山形県山形市 モデルハウス

Environment/

対象地は山形市の東部。北側ほど近くに市内を横断している馬見ヶ崎川が流れている。河川沿いは桜の並木になっていて、春には花見客でにぎわいをみせる。住宅密集エリアだが、交通量は少なく閑静な住宅街である。

Site/

東側には幅員6m、南側には幅員4.6mの接道を持つ角地。間口6.7m奥行き10.5mと面積はあまり広くはない。西、北ともに隣接不動産が接近しているが、北側の建物は平屋であるため2階からの眺望が開けている。ビルトインガレージで2台の駐車スペースを設けているが、建物南側の外部にも軽自動車1台が置ける程度のスペースを残した。

Data

【坪数】
Site area / 118.52㎡(35.85坪)
Building area / 81.40㎡(24.62坪)
1st f loor area / 78.09㎡(23.62坪)
2nd f loor area / 81.40㎡(24.62坪)
Architectural area / 159.49㎡(48.24坪)
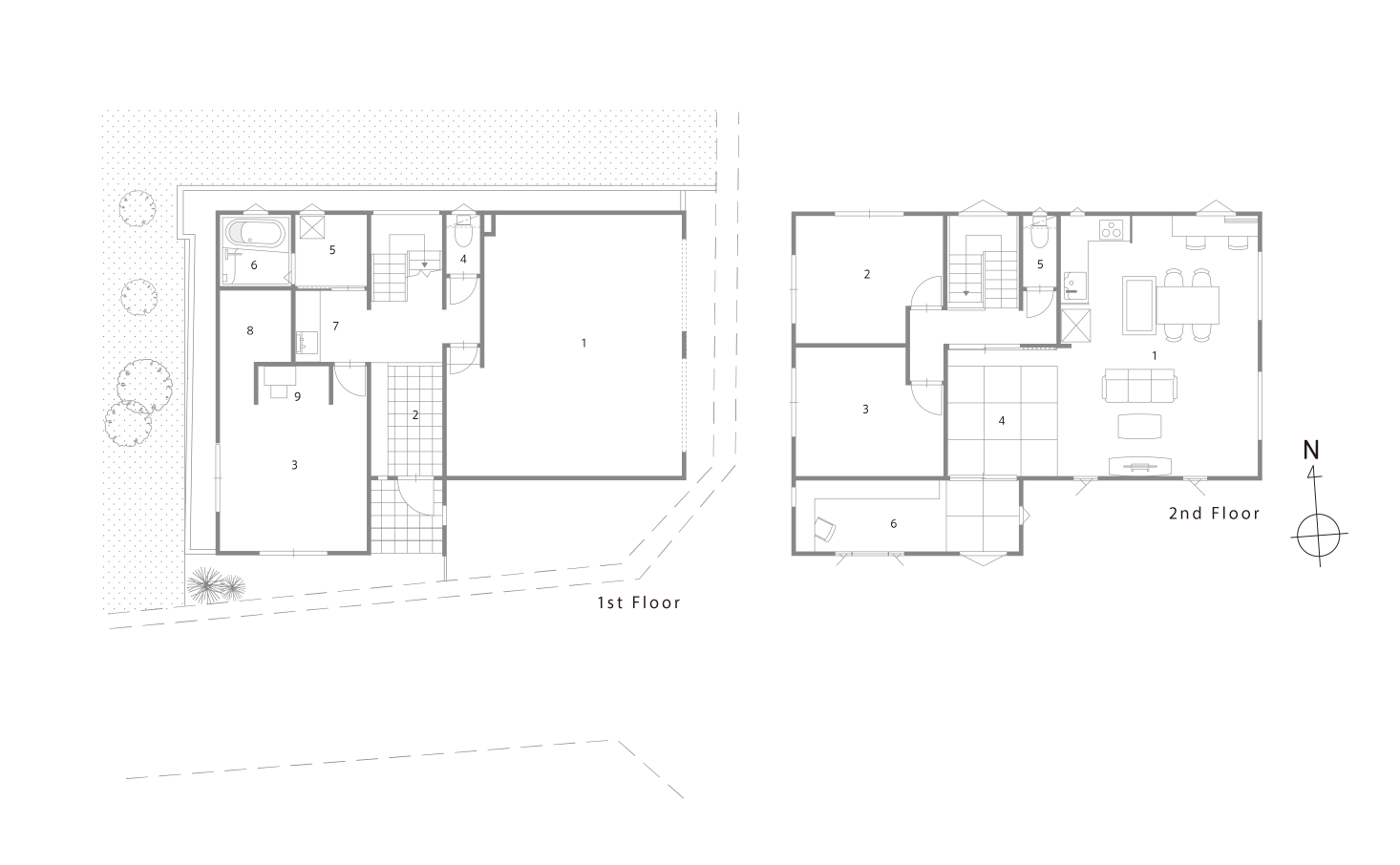
【間取り】
1st Floor / 1.Parking space 2.Entrance 3.Bed room(8.5帖) 4.Toilet 5.Utility6.Bath room 7.Powder room 8.Walk in closet 9.DEN 11.Wood deck
2nd Floor / 1.L.D.K(24.0帖) 2.Room-1(6.5帖) 3.Room-2(6.5帖) 4.Tatami corner 5.Toilet 6.Work space(6.0帖)

敷地面積を有効活用するビルトインガレージ

敷地が狭く、駐車スペースを確保すると、居住スペースに有効な面積が取れないため、建物の中に駐車スペースを設置するビルトインガレージとした。
ガレージの中から室内への入り口も設け、生活の導線を確保。また、ガレージは収納スペースや簡単な作業場としても活用でき、室内への入り口には手洗い場も設けた。

幅一間のワークスペース

東根市の展示場で採用した幅一間のスペースを、この展示場ではL字型の作り付けのデスクを設置することでワークスペースとした。
その手前には置き畳を置き、仕事の合間に休息を取れるスペースをつくった。

ユニテ スタッフ

ユニテ スタッフの
コメント

周辺の緑をリビングに取り込んだ窓の配置
リビングの従来の窓の位置に電線が配置されていたため、窓の位置を下げ、窓の先に広がる緑を有効に取り入れ、
北側の窓の先にある桜の名所の景観も取り入れることができた。