ユニテハウス

クリエイト礼文の注文・分譲住宅情報

×

30

2人暮らし〜将来的には子どもを持ちたい。

間取り画像

<1階平面図>

大空間のLDKを確保。階段をリビングに配置して、家族の動きを共有できるように。水回りをまとめてながらも、キッチンの作業台はアイランドスタイルで対面式に。

外観画像

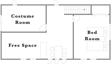
<2階平面図>

2階のフリースペースと子ども部屋を仕切るのは、壁ではなく「可動式の仕切り収納」。2Fにも家族が集まれるフリースペースを用意しました。