ユニテハウス

クリエイト礼文の注文・分譲住宅情報

×

35

3人暮らし〜共働きの30代夫婦+子ども1人

間取り画像

<1階平面図>

広めのLDKを確保。キッチンを壁面に、階段はストリップ階段を採用して、家族の笑顔が集まる約20帖の広々としたダイニングキッチン。洋室は子どものお昼寝スペースとして活用。

外観画像

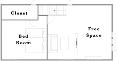
<2階平面図>

フリースペースは仕切りをつけず、家族だけのプライベートリビングに。将来は10帖のフリースペースと子ども部屋にする予定。